- Accueil
- Détails du Bien
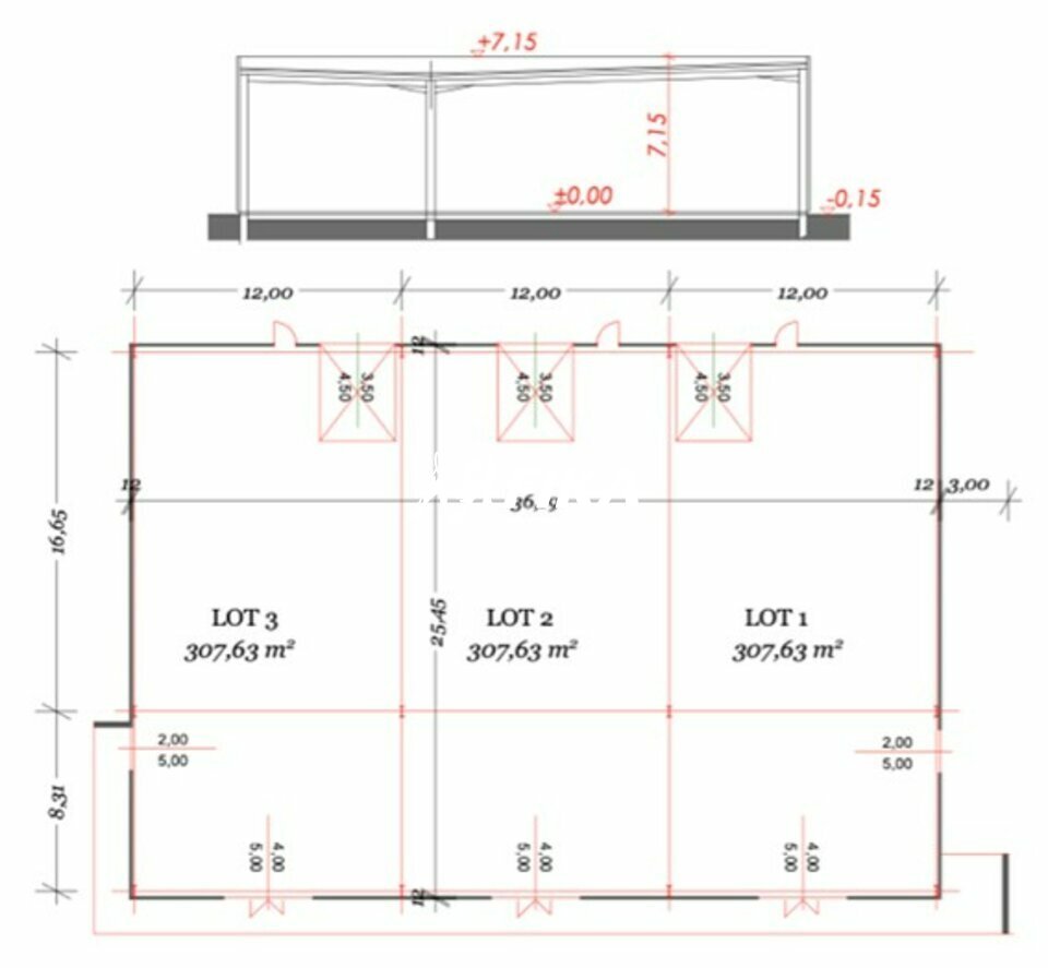
A LOUER LOCAL D'ACTIVITE - 307 m2 - (31620) VILLENEUVE LES BOULOC
Surface 307 m²
Montant de location 36 840 €
Disponibilité Immédiate
Honoraires 15% HT
Description du bien
Nous vous proposons à la location un local d'activité/commerce de 307 m2, situé au Nord de l'agglomération toulousaine dans une zone d'activité dynamique et non loin du pôle logistique Eurocentre.
Ce local bénéficie d'une excellente visibilité avec une accessibilité via un giratoire, d'un parking et d'un accès facile.
Le local de 307 m2 se compose d'un bureau, d'un espace kitchenette, de sanitaires avec douche. Il est équipé d'une porte sectionnelle motorisée de 4 x 3,5 m, et d'une mezzanine qui est démontable.
Le sol est actuellement recouvert d'un parquet, avec dessous une dalle béton. La hauteur sous plafond est comprise entre 5,8 m au plus bas et 6,30 m au plus haute.
Il dispose d'une vitrine sur rue, et d'un accès PMR (Personnes à Mobilité Réduite).
Disponible immédiatement
Honoraires : 15% HT du loyer annuel HT-HC à la charge du preneur
Loyer annuel : 36 840 Euros HT-HC
Taxe foncière annuelle : 2 824,26 Euros HT
Charges annuelles : 360 Euros HT
Les informations sur les risques auxquels ce bien est exposé sont disponibles sur le site Géorisques https://www.georisques.gouv.fr









Siège social et agence de Toulouse
58 Boulevard des Minimes
31200 TOULOUSE
05 61 00 00 01
Agence de Bordeaux
51 rue de Tauzia
33800 BORDEAUX
05 56 72 75 76
© FIKA, vous accompagne dans vos cessions et acquisitions sur les agglomérations toulousaine et bordelaise – Site réalisé par Com Ethik . Mentions légales – Politique de protection des données