- Accueil
- Détails du Bien
VENTE LOCAL D'ACTIVITE NEUF de 120 à 1215 m2
Surface 1 215 m²
Prix de vente 1 822 500 €
Disponibilité 4T 2026
Honoraires 5% HT
Description du bien
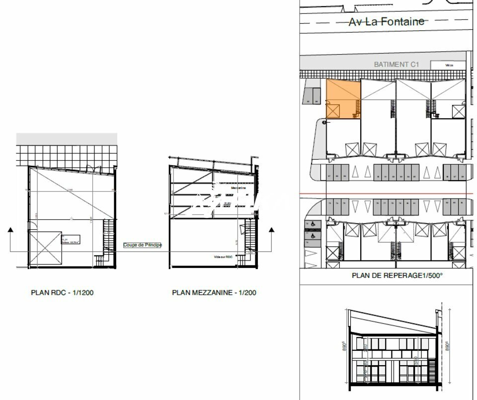
Dans le nouveau Parc d'activité de l'Estey à Carbon Blanc, 9 193 m2 de surface de plancher dédiés aux activités artisanales, industrielles et commerciales répartis sur 8 bâtiments sont proposés à la vente ou à la location.
Visible de l'avenue de Lafontaine à proximité du centre commercial Sainte Eulalie, les locaux ont un accès direct à l'autoroute A10.
Chaque lot est équipé de prestations qualitatives, portes sectionnelles, mezzanines, hauteur libre 6 à 8m, dans un environnement paysager et dynamique le site bénéficie de parkings, abris vélos, de desserte interne de circulation VL et PL.
Contactez nous pour choisir votre emplacement idéal pour votre activité.
Première tranche livraison 4T 2026
Les informations sur les risques auxquels ce bien est exposé sont disponibles sur le site Géorisques https://www.georisques.gouv.fr




Détails de Surfaces
Bâtiment C1 X6 LOTS| Batiment - Lot | LOT | SDP | Mezzanine | Total SDP | Prix vente m2 HT | Prix du lot HT |
| C1 | 1 | 120,76 | 61,49 | 182,25 | 1 500,00 | 273 375,00 Euros |
| C1 | 01bis | 120,38 | 120,38 | 1 500,00 | 180 570,00 Euros | |
| C1 | 2 | 243,24 | 61,3 | 304,54 | 1 500,00 | 456 810,00 Euros |
| C1 | 3 | 243,27 | 61,3 | 304,57 | 1 500,00 | 456 855,00 Euros |
| C1 | 4 | 120,95 | 61,6 | 182,55 | 1 500,00 | 273 825,00 Euros |
| C1 | 04 bis | 120,38 | 120,38 | 1 500,00 | 180 570,00 Euros |
Siège social et agence de Toulouse
58 Boulevard des Minimes
31200 TOULOUSE
05 61 00 00 01
Agence de Bordeaux
51 rue de Tauzia
33800 BORDEAUX
05 56 72 75 76
© FIKA, vous accompagne dans vos cessions et acquisitions sur les agglomérations toulousaine et bordelaise – Site réalisé par Com Ethik . Mentions légales – Politique de protection des données