- Accueil
- Détails du Bien
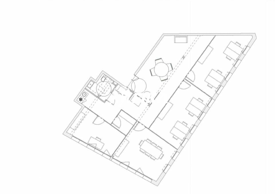
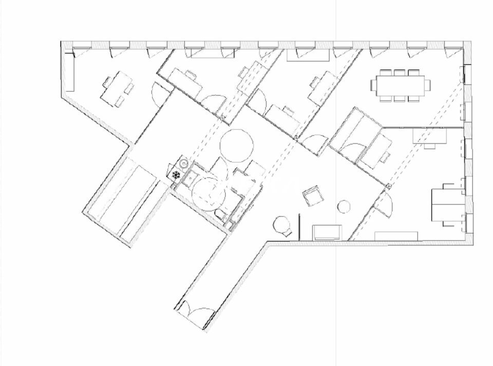
Bureaux à vendre à partir de 138 m2 à Tres
Surface 280 m²
Prix de vente 490 000 €
Disponibilité Immédiate
Honoraires 6% HT
Description du bien
OFFRE EXCEPTIONNELLE, BUREAUX NEUFS A VENDRE à TRESSES : installez-vous dans un environnement de travail moderne et fonctionnel et économique !
Situés au coeur du parc tertiaire Fénelon, ce plateau de bureaux lumineux et fonctionnels sont prêts à accueillir votre entreprise. Profitez d'un emplacement stratégique à proximité de la rocade bordelaise et de toutes les commodités.
Caractéristiques principales :
- Surface : 279,64 m2 divisibles à partir de 138,28 m2
- 6 places de parking sécurisées dont 2 pour voitures électriques (comprises dans le prix)
- Aménagements : Open-space modulable, salles de réunion, sanitaires, PMR
- Équipements : Climatisation, VMC, fibre optique, accès sécurisé
- Prestations : Sols carrelés, faux plafonds, peinture, éclairage LED
Emplacement stratégique : À proximité de la rocade et des transports en commun
Flexibilité : Aménagements personnalisables
Confort : Environnement de travail agréable et lumineux
Contactez nous pour organiser une visite et découvrir votre futur espace de travail !
Les informations sur les risques auxquels ce bien est exposé sont disponibles sur le site Géorisques https://www.georisques.gouv.fr












Détails de Surfaces
| Batiment - Lot | Etage | Type | Surface | Prix vente | Prix vente m2 | Parkings |
| Lot 5 | R+1 | Bureaux | 141,36 m² | 245 000 Euros HT hors parking | 1733 Euros HT/ m² | 3 |
| Lot 6 | R+1 | Bureaux | 138,28 m² | 245 000 Euros HT hors parking | 1772 Euros HT/ m² | 3 |
Siège social et agence de Toulouse
58 Boulevard des Minimes
31200 TOULOUSE
05 61 00 00 01
Agence de Bordeaux
51 rue de Tauzia
33800 BORDEAUX
05 56 72 75 76
© FIKA, vous accompagne dans vos cessions et acquisitions sur les agglomérations toulousaine et bordelaise – Site réalisé par Com Ethik . Mentions légales – Politique de protection des données